Üstün teknoloji ile üretilen ÜNMAK ÜKYS/3G-Y üç geçişli kalorifer kazanları TS EN 303-5 ve TS 497 Standardlarına uygundur. Özel döküm pota (ocak) tasarımı, yerli ve yabancı her kalite linyiti yakmaya uygun hale getirmekte ve tam yanmayı sağlamaktadır.
Katı yakıtlı, piyasada 10 – 25 mm arasında, pirinç kömür, fındık kömür olarak bilinen kömürleri yakmak için tasarlanmıştır.
Otomatik yakıt yüklemesi ile sağlıklı yanma sağlamaktadır. Isıl ihtiyaca göre yükleme yaptığı için yanma haznesinde gereğinden fazla yakıt bulunması önlenmiştir.
Prizmatik gövdesi ile kompakt yapıya sahiptir, dar alanlara monte edilebilmeyi kolaylaştırmaktadır.
Üç geçişli yapısı sayesinde dumandaki ısı enerjisini suya aktarma yüzeyini arttırmakta ve emisyonları azaltmaktadır.
Alev duman boruları ile ısı transfer yüzey alanı arttırılmış, bu sayede verim yükseltilmiştir.
Dijital kontrol paneli ile daha hassas termostat kontrolünü sağlamaktadır. Yakıt kalitesine göre yükleme ayarlarına müdahale imkânı vermekte, yakıtın en uygun miktarda yanma haznesine göndermeyi sağlamaktadır. Ayarlanan sıcaklığa ulaştığında yakıt beslemesini ve fanı durdurmakta, sıcaklık düştüğünde bu aksamları tekrar devreye alarak, ısıtmaya kaldığı yerden devam etmektedir.
Fan sayesinde, ayarlanan sıcaklık derecesine daha hızlı çıkmakta, yanma optimizasyonu sağlamaktadır.
Oda termostatı bağlanabilme seçeneği ile uzaktan kazan suyu sıcaklığını ayarlama konforu sağlanmıştır.
Isı yalıtımı yapılmış gövde sayesinde kazan yüzeyinden yayılan sıcaklığın içeride tutulması yakıt tasarrufu sağlamaktadır.
Yanmayı erteleme: Dış hava sıcaklığının yüksek olması durumunda kumanda panosundan kazan kapatılabilmektedir. Bu durumda fanın kapanması ile yanan yakıt kararıp yanma ertelenmektedir. Tekrar ısı ihtiyacı doğduğunda kazan, kumanda panosundan açılarak tutuşturma gerekmeden yanmaya devam etmekte ve istenen ısıya kısa sürede ulaşmaktadır (yanma erteleme, kömür kalitesine göre 24 saate kadar yapılabilmektedir).
Otomatik stop özelliği sayesinde, yakıt bitince kontrol paneli algılamakta; fan ve sirkülasyon pompası otomatik olarak durmaktadır. Bu özelliği ile enerji tasarrufu sağlanmaktadır.
Kolay kullanımlı geniş doldurma, boru temizleme ve kül alma kapakları sayesinde yakıt doldurma, tutuşturma, kül alma ve boru temizleme işlemleri rahatça yapılabilmektedir.
Şık görünümü ve paslanmaya karşı korunumu, kazan dışına kaplanan kaporta sacları elektrostatik toz boyaya ile kaplanarak sağlanmıştır. Kazan yüzeyleri özel yaş boya ile korunmaktadır.
Boyler ilavesi ile sıcak su elde etme imkânı sağlamaktadır.
Yaygın servis ağı ve yedek parça hizmeti tüm yurtta yüz elliyi aşkın noktadan sağlanmaktadır.
ÜNMAK kalorifer kazanları üretim hatalarına karşı 2 yıl garanti altına alınmıştır
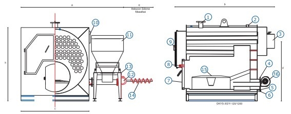
- 1- Sıcak su çıkış
- 2- Emniyet çıkış
- 3- Baca
- 4- Sıcak su dönüş
- 5- Emniyet dönüş
- 6- Su doldurma boşaltma
- 7- Kül boşaltma kapağı
- 8- Gözetleme camı
- 9- Duman borusu temizleme kapağı
- 10- Kontrol paneli
- 11- Bunker
- 12- Redüktör
- 13- Bunker masası
- 14- Helezon
- 15- Pota
- 16- Fan
| MODEL |
ÜKYS/3G/Y |
120 |
150 |
180 |
210 |
240 |
270 |
300 |
330 |
360 |
390 |
420 |
450 |
480 |
510 |
540 |
600 |
660 |
720 |
780 |
840 |
900 |
1000 |
1100 |
1200 |
| Kullanılan Yakıt Türü |
Kömür - Prina - Pellet - Meyve Kabuk ve Çekirdekleri vb. |
| Isıtma Gücü |
kw |
140 |
174 |
209 |
244 |
279 |
314 |
349 |
384 |
419 |
454 |
488 |
523 |
558 |
593 |
628 |
698 |
768 |
837 |
907 |
977 |
1047 |
1163 |
1279 |
1396 |
| kcal/h |
120.000 |
150.000 |
180.000 |
210.000 |
240.000 |
270.000 |
300.000 |
330.000 |
360.000 |
390.000 |
420.000 |
450.000 |
480.000 |
510.000 |
540.000 |
600.000 |
660.000 |
720.000 |
780.000 |
840.000 |
900.000 |
1.000.000 |
1.100.000 |
1.200.000 |
| Yanma Potası Ölçüleri |
mm |
430*410 |
430*410 |
430*410 |
430*410 |
430*410 |
430*410 |
430*410 |
430*410 |
430*410 |
430*410 |
640*810 |
640*810 |
640*810 |
690*1000 |
690*1000 |
690*1000 |
690*1000 |
690*1000 |
690*1000 |
690*1000 |
690*1000 |
740*1000 |
740*1000 |
740*1000 |
| Yakıt Deposu Hacmi |
Kömür |
kg |
250 |
250 |
250 |
300 |
300 |
350 |
350 |
350 |
350 |
350 |
350 |
350 |
350 |
350 |
350 |
450 |
450 |
450 |
450 |
450 |
450 |
450 |
450 |
450 |
| Prina |
kg |
213 |
213 |
213 |
255 |
255 |
300 |
300 |
300 |
300 |
300 |
300 |
300 |
300 |
300 |
300 |
383 |
383 |
383 |
383 |
383 |
383 |
383 |
383 |
383 |
| Su Hacmi |
lt |
720 |
794 |
894 |
1146 |
1276 |
1213 |
1768 |
1814 |
1905 |
1987 |
2063 |
2433 |
2369 |
2628 |
2679 |
2585 |
2915 |
3093 |
3248 |
3448 |
3354 |
4396 |
4479 |
4610 |
| Kazan Ağırlığı |
kg |
1420 |
1525 |
1760 |
1890 |
2075 |
2150 |
2600 |
2765 |
2890 |
2980 |
3250 |
3400 |
3485 |
3735 |
3850 |
4010 |
4285 |
4500 |
4640 |
4890 |
5170 |
5750 |
6040 |
6400 |
| Bacada İstenilen Çekiş |
mbar |
0,42-0,45 |
0,42-0,45 |
0,42-0,45 |
0,44-0,47 |
0,44-0,47 |
0,46-0,49 |
0,46-0,49 |
0,46-0,49 |
0,46-0,49 |
0,48-0,52 |
0,48-0,52 |
0,48-0,52 |
0,51-0,54 |
0,51-0,54 |
0,51-0,54 |
0,53-0,57 |
0,53-0,57 |
0,53-0,57 |
0,56-0,59 |
0,56-0,59 |
0,56-0,59 |
0,56-0,59 |
0,56-0,59 |
0,56-0,59 |
| Sıcaklık Kontrol Aralığı |
°C |
40-80 |
40-80 |
40-80 |
40-80 |
40-80 |
40-80 |
40-80 |
40-80 |
40-80 |
40-80 |
40-80 |
40-80 |
40-80 |
40-80 |
40-80 |
40-80 |
40-80 |
40-80 |
40-80 |
40-80 |
40-80 |
40-80 |
40-80 |
40-80 |
| Tesisat Dönüş Sıcaklığı |
°C |
40 |
40 |
40 |
40 |
40 |
40 |
40 |
40 |
40 |
40 |
40 |
40 |
40 |
40 |
40 |
40 |
40 |
40 |
40 |
40 |
40 |
40 |
40 |
40 |
| Maksimum İşletme Basıncı |
bar |
4 |
4 |
4 |
4 |
4 |
4 |
4 |
4 |
4 |
4 |
4 |
4 |
4 |
4 |
4 |
4 |
4 |
4 |
4 |
4 |
4 |
4 |
4 |
4 |
| Test Basıncı |
bar |
6 |
6 |
6 |
6 |
6 |
6 |
6 |
6 |
6 |
6 |
6 |
6 |
6 |
6 |
6 |
6 |
6 |
6 |
6 |
6 |
6 |
6 |
6 |
6 |
| Kazan Toplam Genişliği (a) |
mm |
2100 |
2140 |
2220 |
2328 |
2410 |
2410 |
2480 |
2480 |
2600 |
2650 |
2740 |
2740 |
2740 |
2740 |
2760 |
2810 |
2890 |
2950 |
2950 |
3000 |
3050 |
3050 |
3100 |
3100 |
| Derinlik (b) |
mm |
2220 |
2220 |
2220 |
2220 |
2220 |
2220 |
2690 |
2690 |
2690 |
2690 |
2690 |
2690 |
2690 |
2920 |
2920 |
3020 |
3020 |
3020 |
3020 |
3020 |
3020 |
3540 |
3540 |
3540 |
| Gövde Genişliği (c) |
mm |
1200 |
1240 |
1320 |
1428 |
1510 |
1510 |
1580 |
1600 |
1650 |
1650 |
1700 |
1790 |
1790 |
1790 |
1810 |
1810 |
1890 |
1950 |
1950 |
2000 |
2050 |
2050 |
2100 |
2150 |
| Baca Bağlantısı Yüksekliği (b) |
mm |
1145 |
1120 |
1120 |
1300 |
1315 |
1370 |
1415 |
1440 |
1475 |
1485 |
1480 |
1575 |
1615 |
1640 |
1570 |
1570 |
1655 |
1645 |
1700 |
1750 |
1760 |
1760 |
1815 |
1860 |
| Helezon Sökme Mesafesi (e) |
mm |
1550 |
1550 |
1550 |
1600 |
1600 |
1600 |
1600 |
1600 |
1600 |
1860 |
1860 |
1860 |
1860 |
1860 |
1860 |
1900 |
1900 |
1900 |
1900 |
1950 |
1950 |
1950 |
1950 |
1950 |
| Kazan Toplam Yüksekliği (h) |
mm |
1570 |
1610 |
1690 |
1798 |
1880 |
1880 |
1950 |
1970 |
2020 |
2020 |
2070 |
2160 |
2160 |
2160 |
2180 |
2180 |
2260 |
2320 |
2370 |
2370 |
2420 |
2420 |
2470 |
2520 |
| Atık Gaz Bağlantı Çapı (Baca) |
mm |
300 |
300 |
300 |
300 |
300 |
300 |
300 |
300 |
350 |
350 |
350 |
350 |
350 |
350 |
350 |
350 |
400 |
400 |
400 |
400 |
400 |
400 |
400 |
400 |
| Min-Max Baca Sıcaklığı |
°C |
170-210 |
170-210 |
170-210 |
170-210 |
170-210 |
170-210 |
170-210 |
170-210 |
170-210 |
170-210 |
170-210 |
170-210 |
170-210 |
170-210 |
170-210 |
170-210 |
170-210 |
170-210 |
170-210 |
170-210 |
170-210 |
170-210 |
170-210 |
170-210 |
| Kazan Gidiş Dönüş |
R'' |
DN 50 |
DN 50 |
DN 65 |
DN 65 |
DN 80 |
DN 80 |
DN 80 |
DN 80 |
DN 80 |
DN 80 |
DN 80 |
DN 100 |
DN 100 |
DN 100 |
DN 100 |
DN 125 |
DN 125 |
DN 125 |
DN 125 |
DN 125 |
DN 125 |
DN 150 |
DN 150 |
DN 150 |
| Genleşme Tankı Gidiş - Dönüş |
R'' |
1 1/4'' |
1 1/4'' |
1 1/4'' |
1 1/4'' |
1 1/2'' |
1 1/2'' |
1 1/2'' |
1 1/2'' |
1 1/2'' |
2'' |
2'' |
2'' |
2'' |
2'' |
2'' |
2'' |
2'' |
2'' |
2'' |
2'' |
2 1/2'' |
2 1/2'' |
2 1/2'' |
2 1/2'' |
| Doldurma - Boşaltma |
R'' |
3/4'' |
3/4'' |
3/4'' |
3/4'' |
3/4'' |
3/4'' |
3/4'' |
3/4'' |
3/4'' |
3/4'' |
3/4'' |
3/4'' |
3/4'' |
3/4'' |
3/4'' |
3/4'' |
3/4'' |
3/4'' |
3/4'' |
3/4'' |
3/4'' |
3/4'' |
3/4'' |
3/4'' |
| Elektrik Bağlantısı |
V/Hz |
400V-50 Hz |
400V-50 Hz |
400V-50 Hz |
400V-50 Hz |
400V-50 Hz |
400V-50 Hz |
400V-50 Hz |
400V-50 Hz |
400V-50 Hz |
400V-50 Hz |
400V-50 Hz |
400V-50 Hz |
400V-50 Hz |
400V-50 Hz |
400V-50 Hz |
400V-50 Hz |
400V-50 Hz |
400V-50 Hz |
400V-50 Hz |
400V-50 Hz |
400V-50 Hz |
400V-50 Hz |
400V-50 Hz |
400V-50 Hz |
*Ölçülerde değişiklik yapma hakkımız saklıdır.